PRESTAZIONI SVOLTE
- Progetto architettonico di massima e definitivo
- Direzione lavori architettonica
- Progettazione di massima arredamento e dettagli per i servizi igienici
- Coordinamento della sicurezza ai sensi D.Lgs. 81/08
- Presentazione denuncia di variazione catastale
- Attestazione di Agibilità
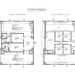
SITUAZIONE: Categoria / Artigianale-Uffici – AZIENDA G; Luogo: Firenze. Trattasi di un fondo (superficie uitile mq 180, volume unico di h 535 cm.) facente parte di un grande complesso artigianale.
OBBIETTIVI: Creare una zona laboratorio ed un ufficio open space per l’amministrazione ed il ricevimento con servizi e spogliatoi annessi e gli uffici privati dei soci della ditta con la sala riunioni.
SOLUZIONI: Progetto edile, realizzazione di un nuovo solaio in profilati metallici e lamiera ondulata per realizzazione di un grande soppalco, realizzazione di nuovi servizi igienici (divisi uomo/donna), realizzazione di nuovi impianti a norma, costruzione di pareti divisorie in cartongesso.
RISULTATI: Si è ottenuto uno spazio estremamente piacevole e funzionale con una grande attenzione anche al lato estetico ottenuto mediante l’utilizzo di colori chiari e arredi pratici ed essenziali. Lo spazio così è stato così distribuito ed organizzato: ingresso attesa dal quale si accede a sinistra al grande laboratorio artigianale e a destra all’ufficio open space; frontalmente, ovvero nella zona interessata dal soprastante soppalco di altezza cm.240, si accede alla zona servizi (spogliatoi, bagni, mensa).
Al soppalco al piano superiore di mq 90 circa, (n. 4 uffici, grande sala riunioni e ulteriore servizio igienico), si accede tramite una scala autoportante posizionata nell’open space.

















